Overview
Contents:
Location
The site is the former United States embassy to the Netherlands in the Hague, designed by Marcel Breuer in 1956. It is located at the intersections of the Korte Voorhout with both the Lange Voorhout and Smidsplein. The site sits at the edge of the old city center, and in the heart of the political and cultural center of The Hague, also known as the Museum Quarter. The site was originally a hotel which was bombed during the Second World War, after which the Americans based their embassy to the Netherlands there. It was in use until 2018, when the building no longer suited for the embassy's needs. It has since been occupied by WEST Den Haag, an art institution focussed on exhibiting contemporary forms of art. The building has been deemed a national monument.
Design Assignment
This semi-fictional design assignment was all about incorporating an existing, monumental building into a new program. This former office building needs to become an exhibit space for WEST Den Haag, as well as housing studios for the Royal Art Academy and host a debate center, in addition to offices and other supporting spaces. The new program requires more space than the existing building can provide, which means a new annex must be built that incorporates the original building with new values, meets new demands and fits in with the surrounding neighborhood.
Initial Research
Upon an initial excursion to the former Embassy, there was much to observe. The building is very complex and layered, and the passage of time has only further complicated its story. Nonetheless, it stands out as a beautiful, although perhaps slightly pained building. From a first approach, and throughout the rest of the building, a sense of conflict embodies many aspects of the building. Its Modernist expression clashes with more classical buildings in its surroundings, yet the way it has aged and takes its place simultaneously makes it blend in. It's grand materials suffer a bout of humility from the way they have weathered, a detail Breuer carefully thought about. The building was originally designed to be an open, inviting and very public place, but over the course of the late-20th century, became a closed-off fortress. From the start, it was clear that there was beauty and value that needed to be dusted down and brought to the forefront again, while 'fixing' some of the less fortunate interventions. However, the strong sense of identity already developed would pose a potential challenge for the creation of a new one.
Current Main Entrance on the Lange Voorhout, the building has clearly found its way to becoming a part of this place
Current Main Entrance on the Lange Voorhout, the building has clearly found its way to becoming a part of this place
Picture of a staircase, a wonderful example of the richness of Breuer's architectural expression and use of materials
Picture of a staircase, a wonderful example of the richness of Breuer's architectural expression and use of materials
End of the parking ramp, displaying how band-aid solutions to changing needs chafe with functionality and openness
End of the parking ramp, displaying how band-aid solutions to changing needs chafe with functionality and openness
Diagram describing and organizing the value of numerous aspects of the existing building, with icons to describe the essence of these qualities
Diagram describing and organizing the value of numerous aspects of the existing building, with icons to describe the essence of these qualities
Value-Based Heritage
When dealing with Heritage in Architecture, a balance must always be struck between preserving the existing building and adapting it for current and future needs. The best way to decide what needs to be changed, as well as how and why, is by looking at the value different parts of the building hold. These range from the material to immaterial aspects of the building, which can all have value in different ways (eg. historical, technical, artistic, etc.). By assessing what overal value the current building provides, a benchmark is made against which the new design must provide greater value. In the diagram to the right,below, I summarized the essence of the value of each aspect, and organized these hierarchically. With this value assessment and transformation framework, I was next able to decide which aspects to preserve, change and remove, and where new aspects needed to be added.
Main Concepts
Based on the research and the value assessment, I developed the following concept and vision: I wanted to maximally maintain the overall aesthetic, composition and architectural expression of Breuer's original building. At the same time, I wanted to "fix"/improve some of the more neglected and awkward parts and spaces of the building, replacing the current spirit of conflict with one that celebrates contrast in a more harmonious way. To that end, I would introduce a greater variety of spaces, held together by a central route to create movement through a dynamic array of spaces that would provide one place for discussion and inspiration for all. These three pillars touch both the physical and non-physical of the building, and will help tie together the past, present and future.
Vision Sketches:
Vision sketch from the perspective of the Korte Voorhout
Vision sketch from the perspective of the Korte Voorhout
Vision sketch of the new volume at the Smidsplein
Vision sketch of the new volume at the Smidsplein
Visionary section of the incorporation of new and existing spaces in the new program
Visionary section of the incorporation of new and existing spaces in the new program
Floor plans
Basement
This level contains many of the new exhibit spaces, located in a newly excavated basement next to the existing building. Existing basements are also used for utilities and storage. By utilizing more underground space, and improving the overall quality of existing basements, the need for above ground volume is reduced, minimizing the effect the new building will have on the overall aesthetic of the existing building, as per the value assessment and transformation framework.
Ground Floor
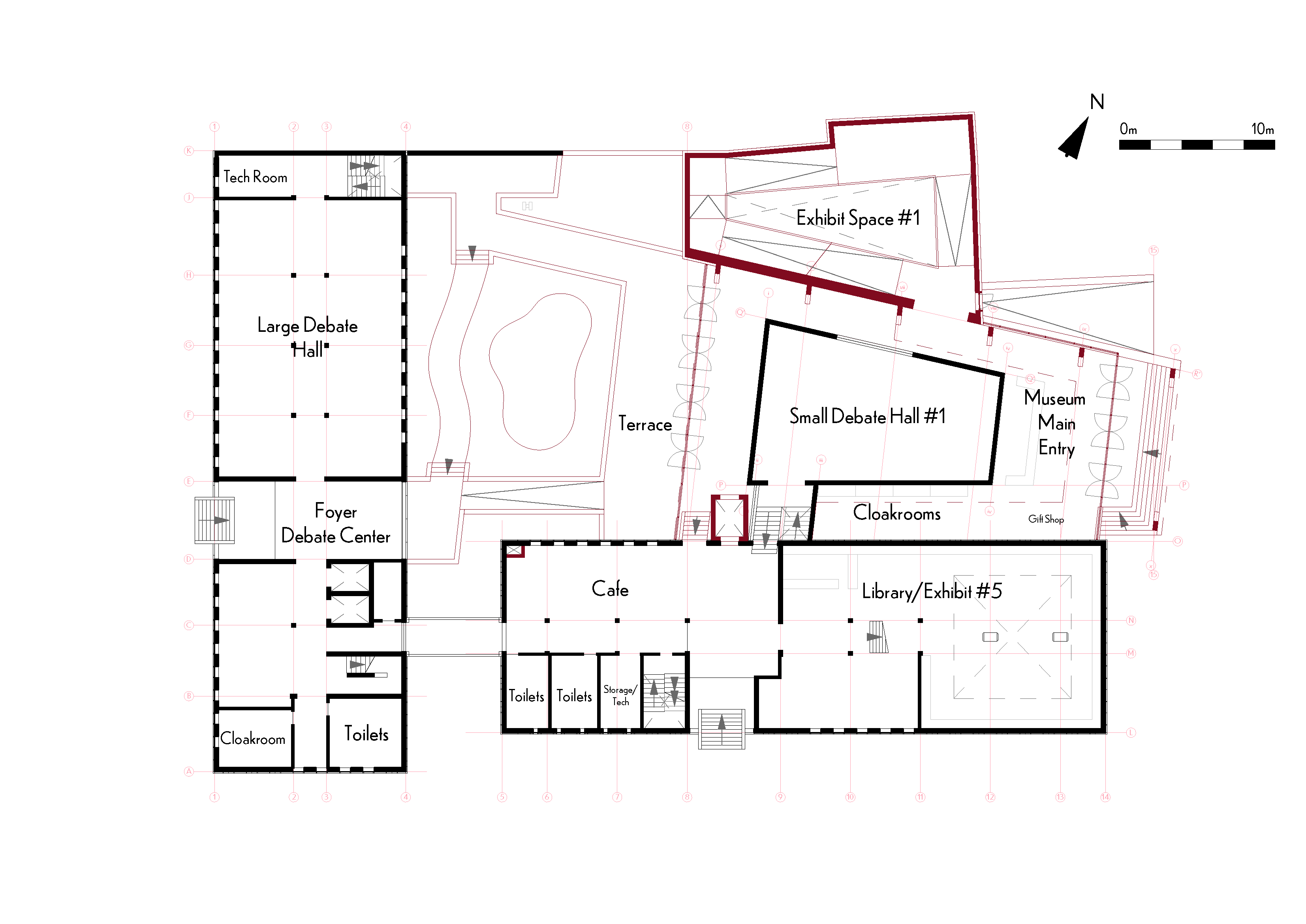
The Ground Floor is where the main entrances to the building are, along the Lange Voorhout, and the new entrance on the Smidsplein. Debate Functions are located in the Western wing of the building, while the exhibit spaces are located throughout the new and old buildings on the Eastern end. All buildings surround a newly renovated, public courtyard with a terrace for the adjacent cafe.
First Floor
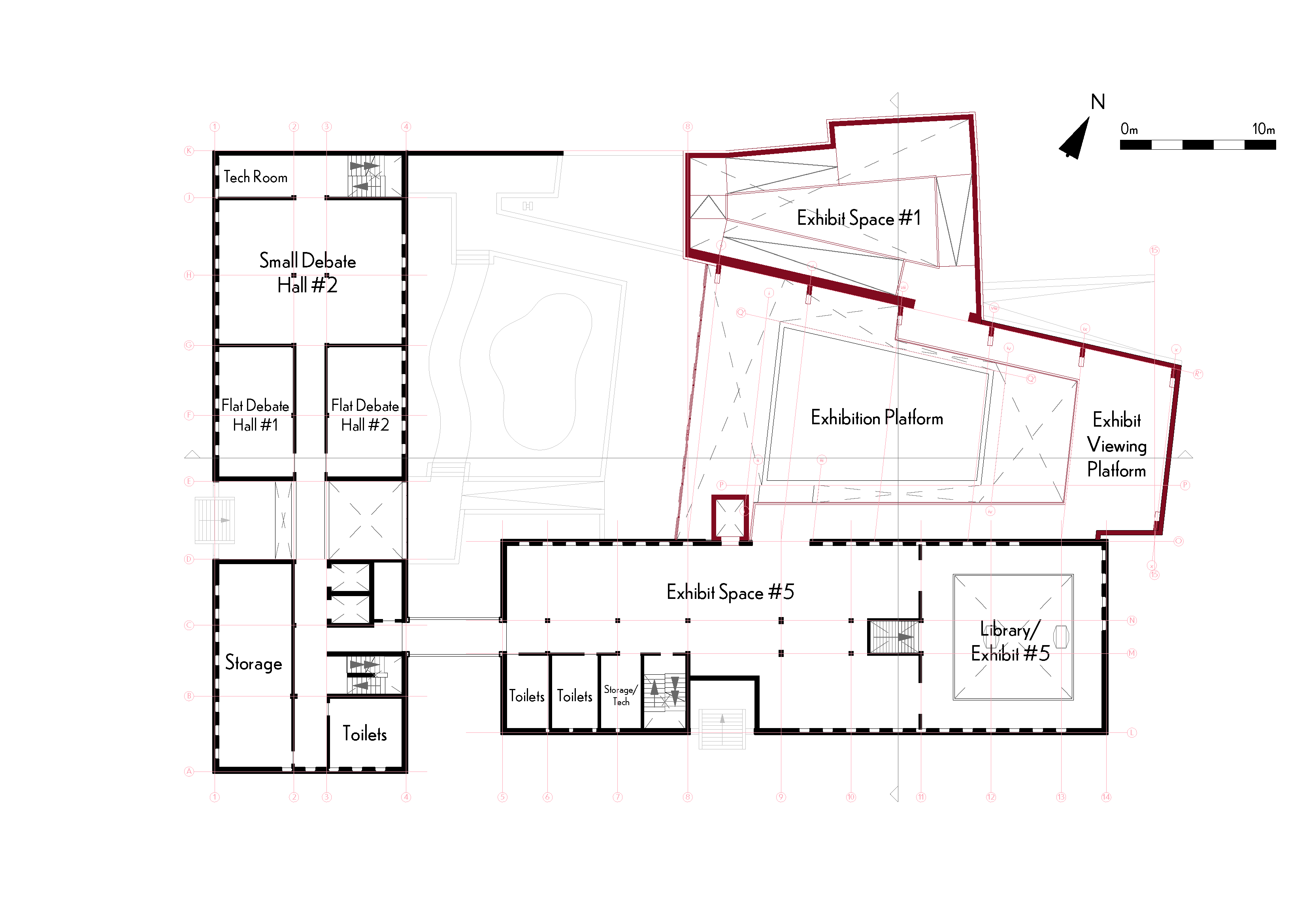
The First Floor is home to the remaining public exhibit spaces and debate halls. The layout here is similar to the Ground floor, and maintains a connection it through the opening toward the lobby in the new building. In this plan, it is clear how the different exhibit halls each provide a unique space for potential installations and exhibitions.
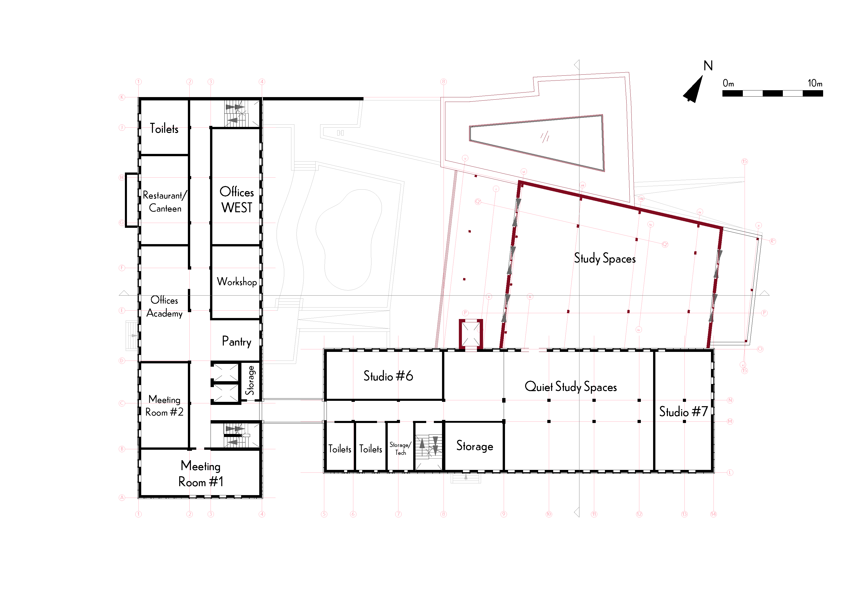
Second Floor
The Second Floor is more functional than the previous floors, and is only semi-public in nature. This floor is home to the main offices for WEST, as well as studios and study spaces for the Royal Art Academy. The study spaces are enriched with two large balconies with views to the Smidsplein and the new Courtyard to encourage outdoor study and inspiration.
Third Floor
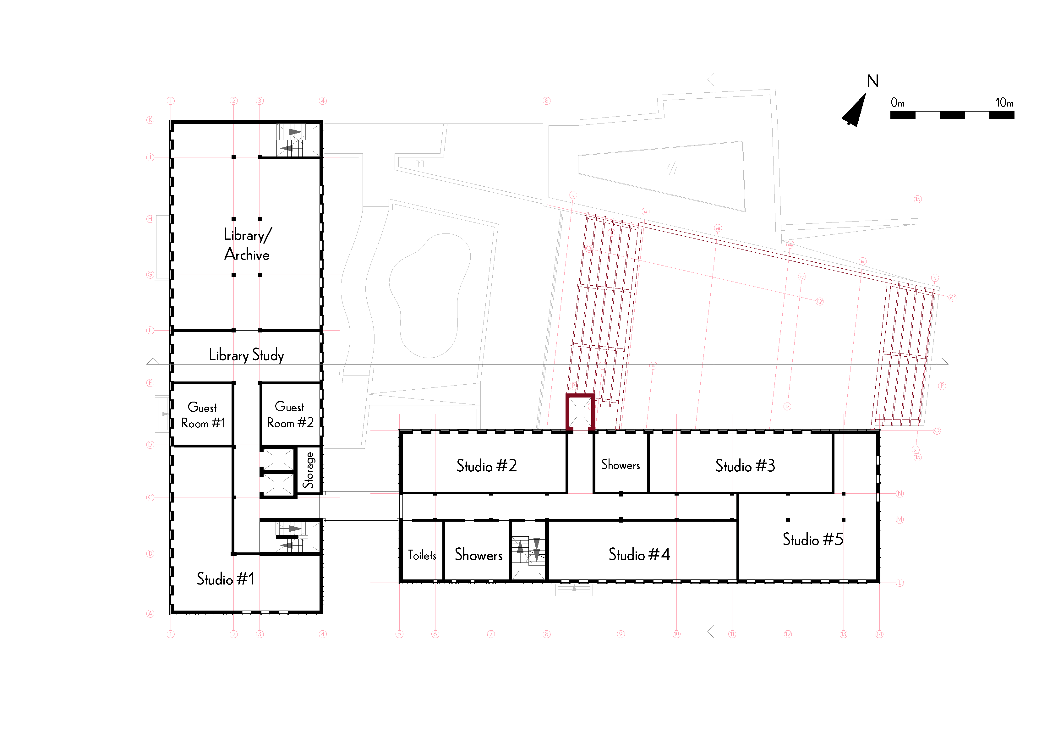
The Third Floor, similar to the Second Floor, houses functional spaces in the form of studios for the Royal Art Academy, the archives for West, and Guest Rooms for international or visiting artists.
Floor plan for the Basement
Floor plan for the Ground Floor
Floor plan for the First Floor
Floor plan for the Second Floor
Floor plan for the Third Floor
Sections
Sections across and along the building, showing the qualities and relations between spaces.
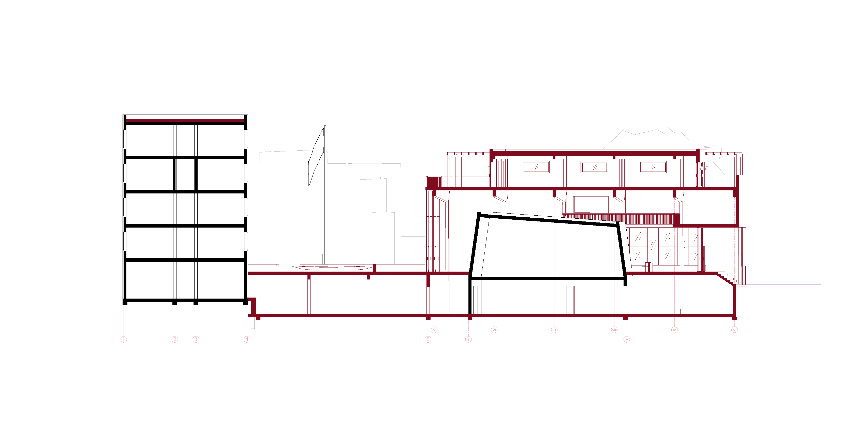
Section across the old and new buildings. In it, one can see the arrangement of spaces, particularly in the new wing (drawn red) which encompasses the existing auditorium.
Section across the old and new buildings. In it, one can see the arrangement of spaces, particularly in the new wing (drawn red) which encompasses the existing auditorium.
Section across the old and new buildings, as well as the courtyard. Here, the spatial qualities of the new main entrance and lobby are clearly visible, as well as the new courtyard.
Section across the old and new buildings, as well as the courtyard. Here, the spatial qualities of the new main entrance and lobby are clearly visible, as well as the new courtyard.
Renders
Selection of renders made for the final presentation of the project.
Front View of the New Building
New Building in relation to the Smidsplein
Lobby at the new Main Entrance
New Building and Courtyard
Cafe Terrace in the Courtyard
View from the balcony on the 2nd Floor
Rendered plan view of the Ground Floor
Technical Aspects & Sustainability
Indoor Climate
Climate Diagram in Summer, showing the use of floor cooling, natural sun shading, natural ventilation and thermal mass.
Climate Diagram in Summer, showing the use of floor cooling, natural sun shading, natural ventilation and thermal mass.
Climate Diagram in Summer, showing the use of floor cooling, natural sun shading, natural ventilation and solar panels.
Climate Diagram in Summer, showing the use of floor cooling, natural sun shading, natural ventilation and solar panels.
Climate Diagram in Winter, showing the use of floor heating, natural inflow of sunlight, natural ventilation and thermal mass.
Climate Diagram in Winter, showing the use of floor heating, natural inflow of sunlight, natural ventilation and thermal mass.
Climate Diagram in Winter, showing the use of floor heating, natural inflow of sunlight, natural ventilation and solar panels.
Climate Diagram in Winter, showing the use of floor heating, natural inflow of sunlight, natural ventilation and solar panels.
The design of the new building incorporates many means of passive climatization, such as smart sun shading, green roofs and natural ventilation. The newly planted deciduous trees on the Southern facades reduce the penetration of sunlight (and warmth) into the building in summer, but maximizes it in winter. They also help to absorb noise from the busy streets surrounding the building. Green roofs similarly help to cool the surroundings in summer, and provide additional insulation in winter. Natural ventilation would lead to humidity and fluctuating temperatures inside were it not for the rammed earth elements in the new building. These elements naturally absorb and release moisture, thereby regulating the air's humidity, and their large mass helps to stabilize the temperature inside. These measures help to reduces dependency on mechanical means of climatization, although efficient forms of these have been implemented for extreme cases. A floor heating/cooling system is applied throughout the old and new building, which is also connected to a thermal buffer underground. The roof features solar panels for electricity generation, as well as grey water collection for the flushing of toilets.
Exploded Isometric drawing of the new load-bearing structure in relation to the existing building
Exploded Isometric drawing of the new load-bearing structure in relation to the existing building
Structure
The structure of the new building is designed to be semi-independent, and with minimal impact on the existing building. One of the concepts for the entire building was to maintain visibility of Breuer's facade design, which is why where the old and new buildings meet, I have chosen to use cantilevered portals to avoid putting columns in front of the existing facade. The rammed earth volume at the far end of the building acts as a counter weight, so that as little force as possible is put on the existing facade. Rammed earth is used in the basement as it can be applied freely and made on site with material gained from the excavation of the basement. Almost all other elements are made of timber, and is therefore bio-based.
Detailing
These are the detailed elevations and sections (original scale 1:20) where the old and new buildings meet. From these drawings, the spatial and material qualities of both buildings are highlighted. Aside from the technical aspects these drawings cover, they convey a greater sense of the architectural expression of the design.
1:20 Elevation and Horizontal & Vertical Sections where Old and New meet.
1:20 Elevation and Horizontal & Vertical Sections where Old and New meet.
Situation Map of the New Design in relation to its surroundings
Situation Map of the New Design in relation to its surroundings
Urban Ecology
One important aspect of the design assignment (and for architecture in general) is Urban Ecology. For the health and well-being of everyone in the city, it is important to consider what different living spaces are like for people, animals and plants throughout the city. The design site is surrounded by spaces of relatively high quality, such as the Haagse Bos, the Hofvijver and the adjacent Lange Voorhout, however, the streetscape just outside of the site leaves something to be desired. Furthermore, this space interrupts the flow and connection between the aforementioned qualitative spaces. To address these issues, I have incorporated plant life in my design, by adding green roofs and planting new trees in front of the building, to help tie together and connect these ecological corridors and improve the climactic quality of the surrounding streets.
Current Urban Heat Island Effect (UHI) in the area surrounding the site
Current Urban Heat Island Effect (UHI) in the area surrounding the site
Current daytime noise levels in the area surrounding the site
Current daytime noise levels in the area surrounding the site
Current variety of tree species in the area surrounding the site, mostly varieties of Linden (pink and red), Plane Trees (yellow) and Chestnut Trees (blue)
Current variety of tree species in the area surrounding the site, mostly varieties of Linden (pink and red), Plane Trees (yellow) and Chestnut Trees (blue)
Other projects
Read more about related projects, or return to the project overview.
Very first project
Novo Molinus >>
A housing project for a park ranger, which also features a public learning and visitor's center, is an exemplary case of blending public and private life.
Treehousing >>
This large-scale housing project focuses on the essence of living: what is it that people want and need in their day-to-day lives? And how can values be incorporated into housing design?
DuDock House >>
A passenger terminal for automated RoBoats. Includes a small museum for the concept, as well as the main RoBoat workshop and traffic control.